1 Jarrah Way, Mount Barker

$830,000 Sold!

Stunning & Brand New!

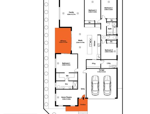
Welcome to 1 Jarrah Way, a stunning 4-bedroom, 2-bathroom house located in the beautiful suburb of Mount Barker. This spacious property boasts a generous building area of approx 239sqm, perfect for families or those looking for a little extra room to spread out.

Featuring a modern design and high-quality finishes, this property is sure to impress. The open-plan living and dining area is perfect for entertaining, while the well-appointed kitchen is a chef's dream with plenty of storage space and sleek appliances.

Four large bedrooms are sure to keep everybody happy with a separate home theatre/second living. A large walk in pantry to the kitchen is perfect for the large family and plenty of storage throughout with a walk in robe to the main bedrooms and built in robes to bedrooms 2, 3 and 4.

Outside, the property offers a double garage and a lovely outdoor area with lush grass and plants, perfect for enjoying the fresh air and sunshine.

Features we love;
* Brand new - Built 2024
* Four bedrooms
* Ensuite, Walk In Robe to Master Bedroom
* Built In Robe's to Bedrooms 2, 3 & 4
* Open plan living/dining/kitchen
* LED downlights throughout
* Stone benchtop to kitchen
* Double Garage
* Low maintenance garden
* Rain Water Tank
* Ducted AC with zone control
* Eligible for first home buyers grant (Subject to Eligibility)
* Stamp duty benefit to first home buyer (Subject to Eligibility)

Located in a quiet neighborhood, this property is close to schools, parks, and shops, making it the perfect place to call home. Don't miss your chance to own this beautiful property!

Located in the Glenlea Estate - please see photos for directions.

All information provided has been obtained from sources we believe to be accurate, however, we cannot guarantee the information is accurate and we accept no liability for any errors or omissions (including but not limited to a property's land size, floor plans and size, building age and condition). Interested parties should make their own inquiries and obtain their own legal advice. RLA 298 661

square: 474 Square metres
Bedrooms: 4
Bathrooms: 2
Garages: 2

property information

main information
  • Property ID: 1468560
  • Bedrooms: 4
  • Price: $830,000
  • Bathrooms: 2
  • Square: 474 Square metres
  • Garage: 2

Do you like this offer? Contact me to get more
information!

contact me

I am here to help with all your real estate needs and questions. Let me know what's on your mind and start a conversation.

mobile