25 Mint Drive, Hayborough

Auction on Sun 01/02/2026 At 12.00PM (USP) Auction

Stylish New Coastal Living in The Rise Estate, Hayborough

Experience contemporary design paired with a relaxed coastal lifestyle in this beautifully finished, brand-new home located in the highly desirable The Rise Estate, Hayborough. Designed with families, investors, and lifestyle buyers in mind, this impressive residence offers quality, space, and comfort in one of South Australia's most rapidly growing seaside communities.

Enjoy the convenience of a prime location with the Fleurieu Aquatic Centre and Starfish Park just moments away, while everyday amenities including Coles, ALDI, local schools, cafés, and the stunning Hayborough beaches are all within easy reach.

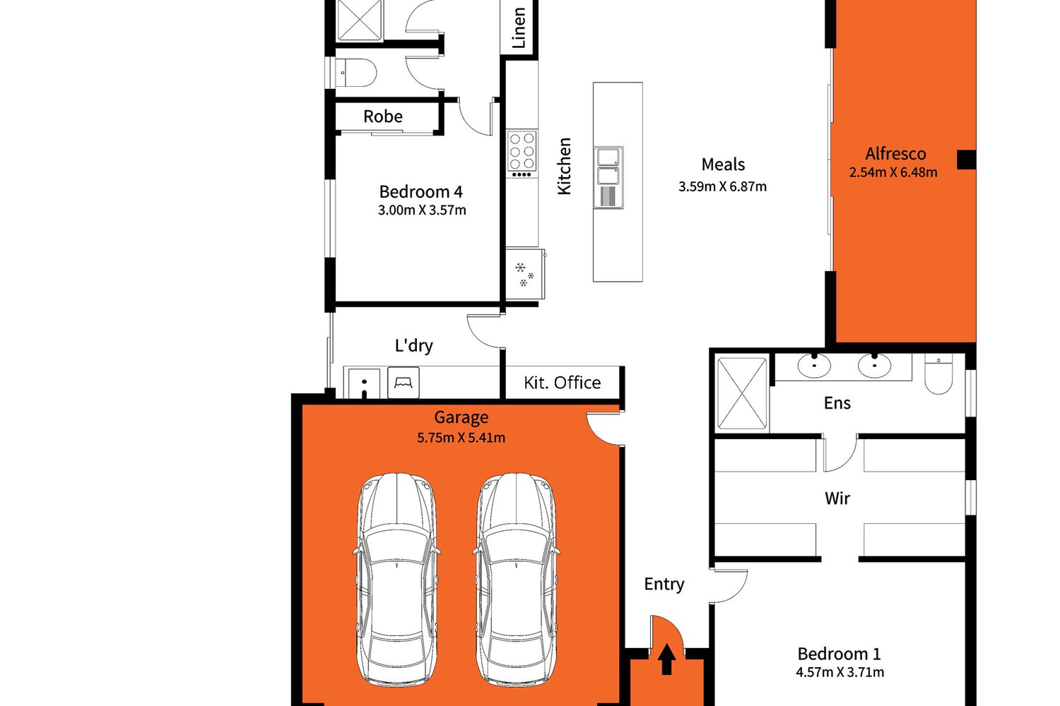
Home Features Include:

• Brand-New Construction - Move Straight In
• Land Size: 789 sqm (approx.)
• Total Covered Area: 237.37 sqm (approx.)
• Four Generous Bedrooms plus Dedicated Family Room & Kit Office
• Master Suite Complete with Ensuite
• Bedrooms 2,3 & 4 Featuring Built-In Robes
• Modern Kitchen with Walk-In Pantry
• 900mm Gas Cooktop & Premium Stainless Steel Appliances
• Stone Benchtops and Abundant Storage
• Floor-to-Ceiling Bathroom Tiling
• Ducted Reverse Cycle Air Conditioning with Wi-Fi Control
• LED Lighting Throughout
• Spacious Open-Plan Living with High-Quality Finishes
• Well-Appointed Laundry with Linen Storage
• Covered Alfresco with Gas Connection and Large Backyard - Perfect for Entertaining
• Hybrid Timber Flooring Throughout
• Double Garage with Auto Panel Door and Internal Access
• Rainwater Tank & Pump
• Low-Maintenance, Fully Fenced Grounds

First Home Buyer Incentives:

Eligible first home buyers may benefit from:
• $15,000 First Home Owner Grant
• Stamp Duty Exemptions (Subject to eligibility)

Conveniently positioned near Victor Harbor, Port Elliot, shopping centres, schools, essential services, and pristine beaches, this home delivers the perfect balance of lifestyle and location.

Contact us today to arrange your inspection and secure this outstanding coastal home in Hayborough.

All information provided has been obtained from sources we believe to be accurate, however, we cannot guarantee the information is accurate and we accept no liability for any errors or omissions (including but not limited to a property's land size, floor plans and size, building age and condition). Interested parties should make their own inquiries and obtain their own legal advice. RLA 298 661

square: 789 Square metres
Bedrooms: 4
Bathrooms: 2
Garages: 2

property information

main information
  • Property ID: 1712240
  • Bedrooms: 4
  • Price: Auction on Sun 01/02/2026 At 12.00PM (USP)
  • Bathrooms: 2
  • Square: 789 Square metres
  • Garage: 2

Do you like this offer? Contact me to get more
information!

contact me

I am here to help with all your real estate needs and questions. Let me know what's on your mind and start a conversation.

mobile