





















Situated in the heart of Hendon, this home offers convenient access to all the best the area has to offer. From shopping and dining to parks and schools, everything you need is just a short distance away.
*Block size 767m2 approx
*Frontage 17.98m approx
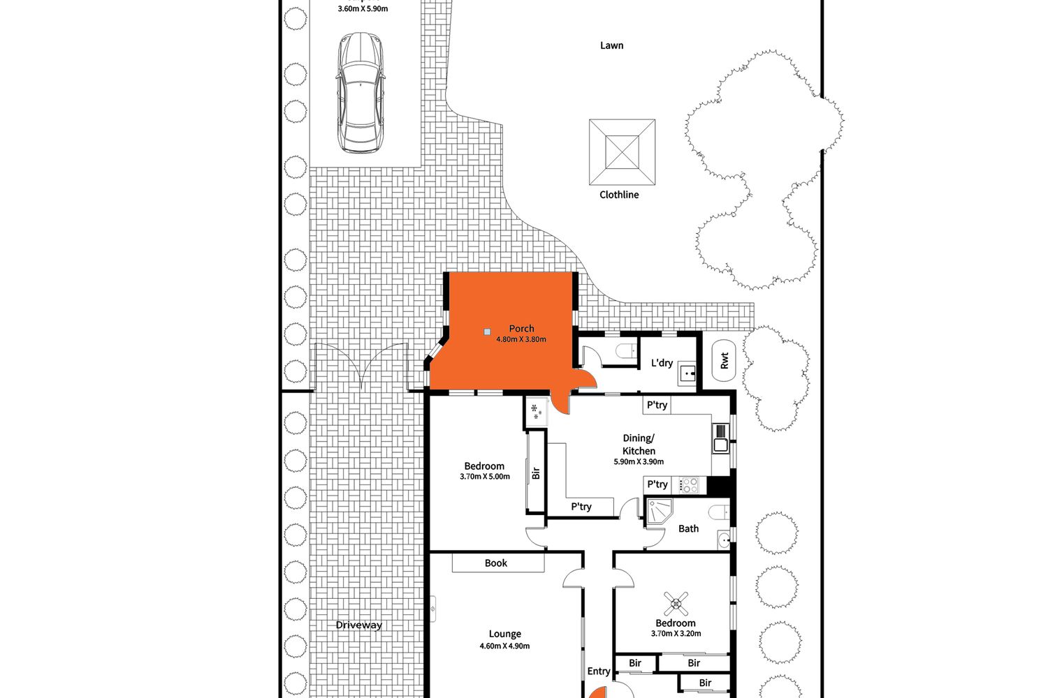
*Large living area with wall air-conditioning, timber feature wall and plush carpet
*Classic kitchen with 4 burner gas cooker and gas oven, and adjacent dining featuring plenty of storage
*Spacious master suite with floor to ceiling built-in robes
*Bedroom 2 & 3 feature built-in robes and ceiling fans
*Undercover verandah with slate underfoot, overlooking the luscious garden.
*Long driveway to the undercover carport
*Garden shed
*Tenanted to 6th July
*Subdivision potential (STCC)
Don't miss out on the opportunity to make this house your dream home. Contact us today to arrange a viewing and take the first step towards owning this beautiful property.
All information provided has been obtained from sources we believe to be accurate, however, we cannot guarantee the information is accurate and we accept no liability for any errors or omissions (including but not limited to a property's land size, floor plans and size, building age and condition). Interested parties should make their own inquiries and obtain their own legal advice. RLA 298 661








































































































Subscribe to get the latest insider tips, market updates and access to the hottest deals as they come on the market.