














Welcome to 39 BARMERA AVENUE, HOPE VALLY.
Perfectly positioned in one of Hope Valley's most desirable pockets, this property offers space, convenience and lifestyle - making it a standout choice for families, developers, or savvy investors.
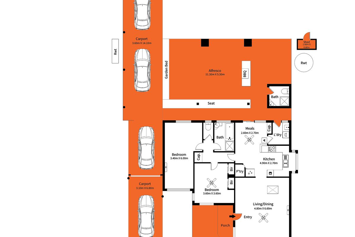
Set on a generous 864sqm allotment, this home presents a rare opportunity to secure a large parcel of land in a premium location.
Location Highlights
• Moments from Westfield Tea Tree Plaza, offering retail, dining and entertainment options.
• Easy access to public transport ,10 Min walks to Tea Tree Plaza Interchange, parks, and local amenities.
• Just a 6-minute walk to Modbury High School, Modbury South Primary School, and Modbury Special School.
• Zoned for and close to respected schools including Modbury South Primary, Modbury High School, and Torrens Valley Christian School, ensuring an easy family lifestyle.
Key Features
• Substantial land size with wide 18.7 m frontage
• Potential to subdivide and build multiple dwellings (STCC)
• Zoned for residential development within a growing suburb
• Surrounded by quality new homes and ongoing development
Property Features
• 3 generous bedrooms - built-in robes to bedroom 1 & 2
• Light-filled living area with easy flow to meals and kitchen
• Updated kitchen with modern appliances
• Enjoy a large outdoor entertaining area complete with BBQ, perfectly positioned to overlook the generous backyard - ideal for gatherings and family fun.
• Ample off-street parking plus side access
• Huge rear shed/workshop - ideal for storage, hobbies or trades
• Outdoor bathroom + exterior floodlights for added convenience
• Solar panels, split-system air conditioning & ceiling fans
• Neatly manicured gardens on a large 864sqm* allotment
Act fast - homes like this in Hope Valley don't last long!
A golden opportunity for developers and investors - and the perfect home choice for those ready to move in!
Proudly presented by Arpit Patel - Prime Property Group SA
All information provided has been obtained from sources we believe to be accurate, however, we cannot guarantee the information is accurate and we accept no liability for any errors or omissions (including but not limited to a property's land size, floor plans and size, building age and condition). Interested parties should make their own inquiries and obtain their own legal advice. RLA 298 661.





















































































Subscribe to get the latest insider tips, market updates and access to the hottest deals as they come on the market.