










**PENDING DEPOSIT**
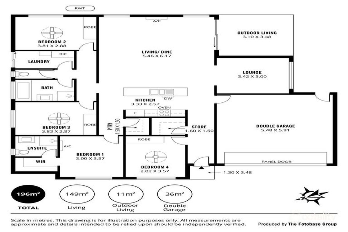
A 2023 built four-bedroom residence.
Situated on a spacious 401sqm (approx.) allotment, this property offers modern convenience and stylish features that tenants will love.
This home boasts four spacious bedrooms, a master suite with a walk-in robe and ensuite.
Two large living areas, this home offers space for everyone to unwind.
A kitchen featuring all the necessary appliances, ample bench space, breakfast bar, and pantry.
Open plan living / dining area flows seamlessly to the outdoor space alfresco patio.
Double garage offers secure off street parking with internal access.
Low maintenance landscaped backyard.
For more details or to arrange an inspection, please contact the agent.













































Subscribe to get the latest insider tips, market updates and access to the hottest deals as they come on the market.