































Built by the reputable Hickinbotham Group, this brand-new 2025-completed home showcases contemporary design and high-quality finishes throughout
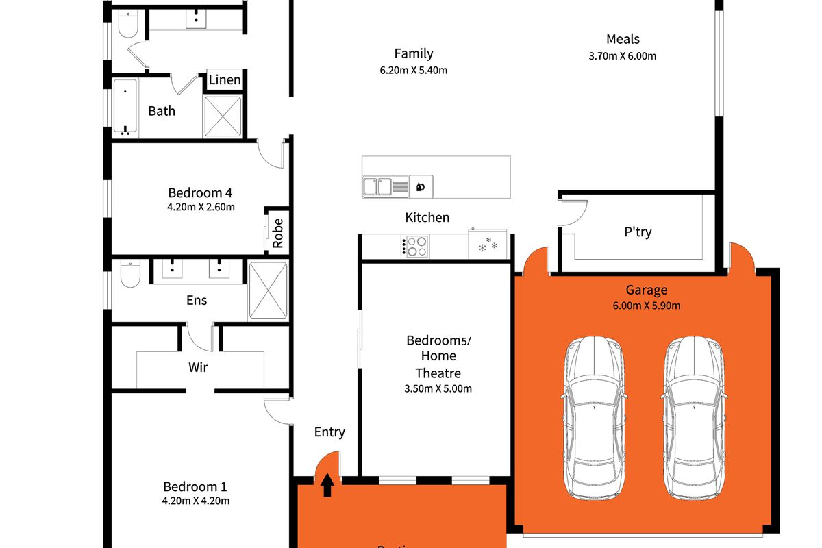
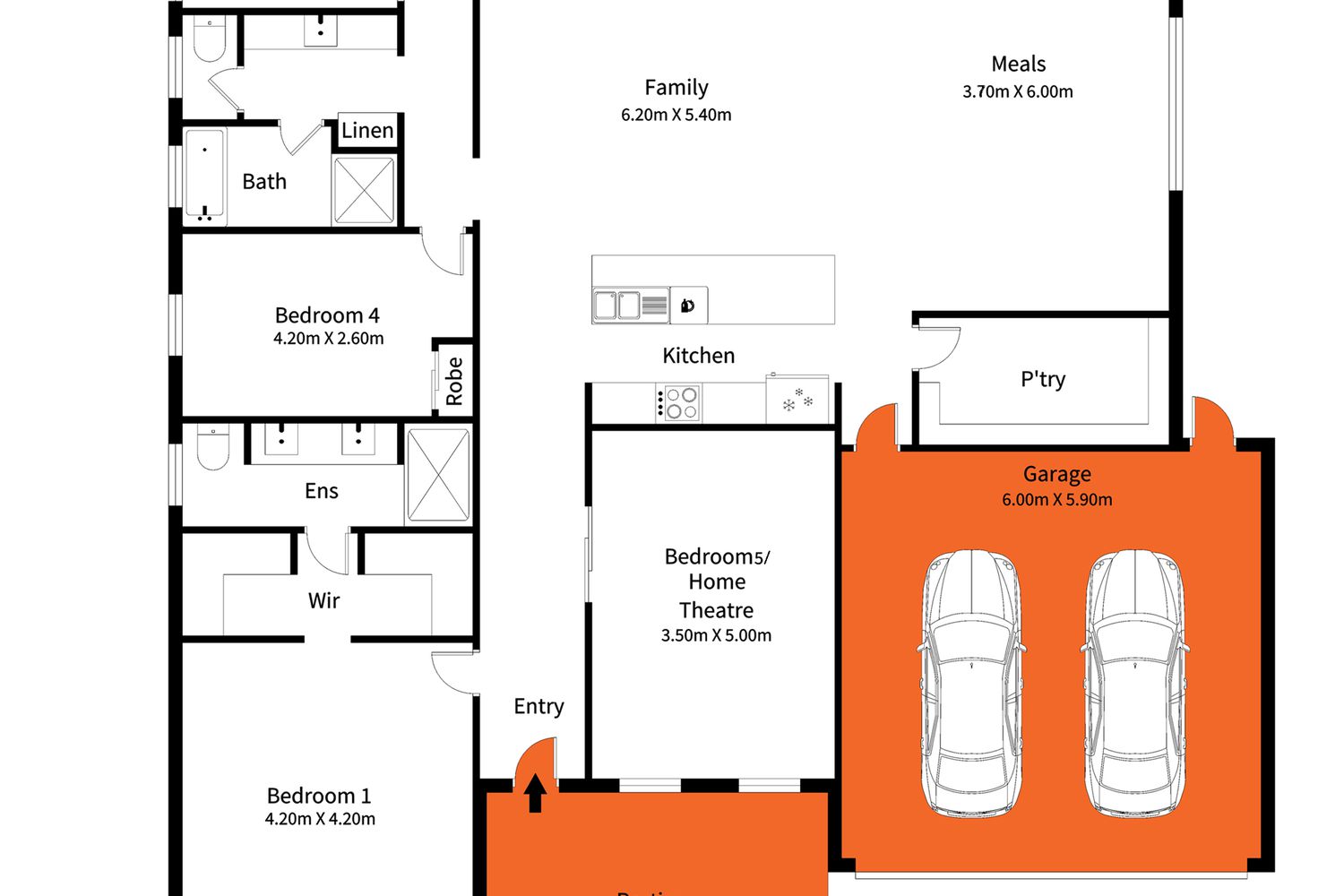
At the heart of the home is a spacious open-plan living and dining area, ideal for entertaining family and friends. The designer kitchen will delight any home chef, complete with a walk-in pantry, stone benchtops, and quality stainless-steel appliances.
Offering four generous bedrooms plus a home theatre or optional fifth bedroom, there is ample space for growing families or multi-functional living. The master suite is a true retreat, featuring a luxurious ensuite and walk-in robe, while bedrooms 2, 3, and 4 include built-in robes. Abundant storage throughout the home ensures everything has its place.
Step outside to a beautiful alfresco entertaining area overlooking a low-maintenance backyard-perfect for enjoying sunny afternoons and hosting guests.
Ideally located in the highly desirable Bluestone community, this home offers the perfect balance of modern living and natural surroundings, with landscaped parks, walking trails, schools, shops, and transport all close by. Enjoy quick access to the South Eastern Freeway (just 5 minutes) and reach the Adelaide CBD in approximately 35 minutes.
Features We Love
• Brand-new build - completed in 2025
• 4 bedrooms + home theatre / 5th bedroom
• Master suite with ensuite & walk-in robe
• Bedrooms 2, 3 & 4 with built-in robes
• Ducted reverse-cycle air conditioning (Wi-Fi controlled)
• Designer kitchen with walk-in pantry
• 900mm gas cooktop & stainless-steel appliances
• Stone benchtops & ample storage throughout
• Floor-to-ceiling tiled bathrooms
• LED downlights throughout
• Laundry with linen cupboard
• Premium floorboards throughout
• Outdoor alfresco & generous backyard
• Double garage with auto panel door & internal access
• Fully fenced, low-maintenance yard
• Eligible first-home buyers may qualify for a $15,000 First Home Owner Grant and stamp duty exemption (subject to eligibility)
All the hard work is done-just move in and enjoy!
Contact Sanjay Patel on 0425 270 101 or Jugal Patel on 0449 740 286 to arrange your inspection today.
All information provided has been obtained from sources we believe to be accurate, however, we cannot guarantee the information is accurate and we accept no liability for any errors or omissions (including but not limited to a property's land size, floor plans and size, building age and condition). Interested parties should make their own inquiries and obtain their own legal advice. RLA 298 661.























Subscribe to get the latest insider tips, market updates and access to the hottest deals as they come on the market.